发布时间:2020-06-26 10:28:00 点击:4773
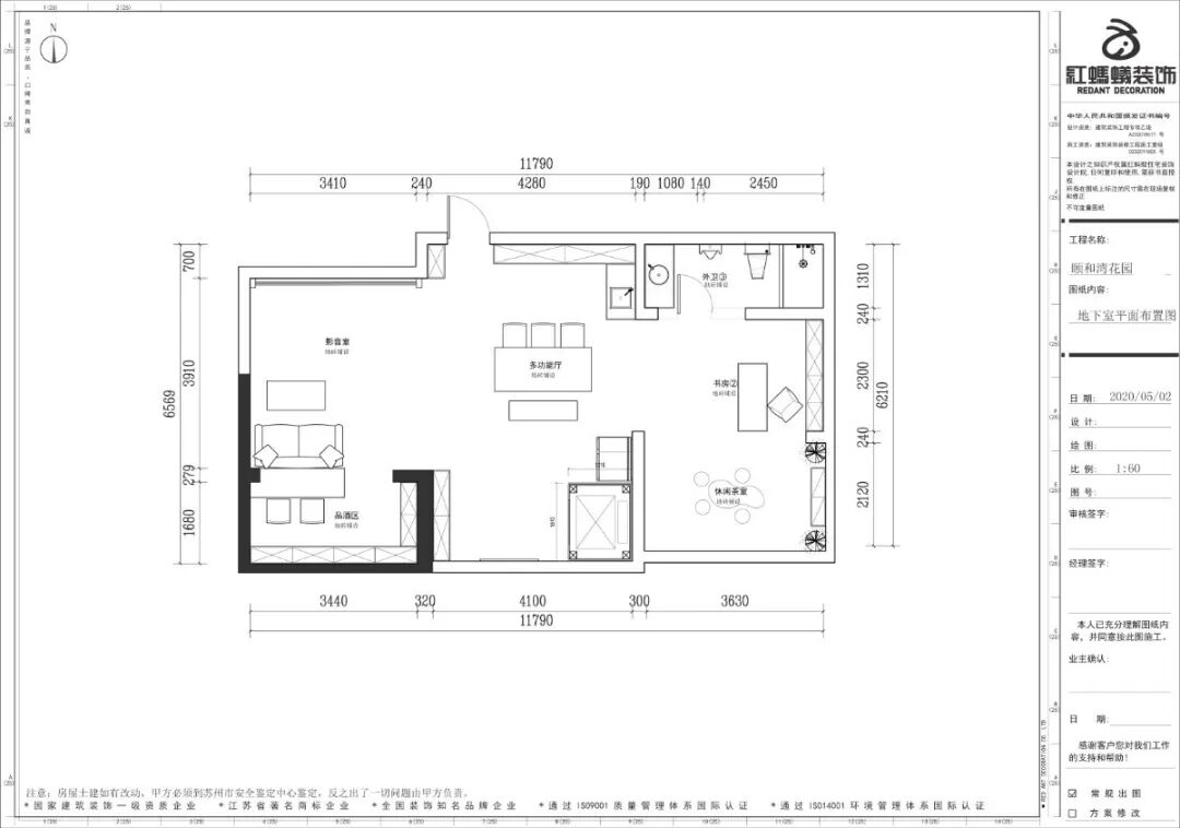
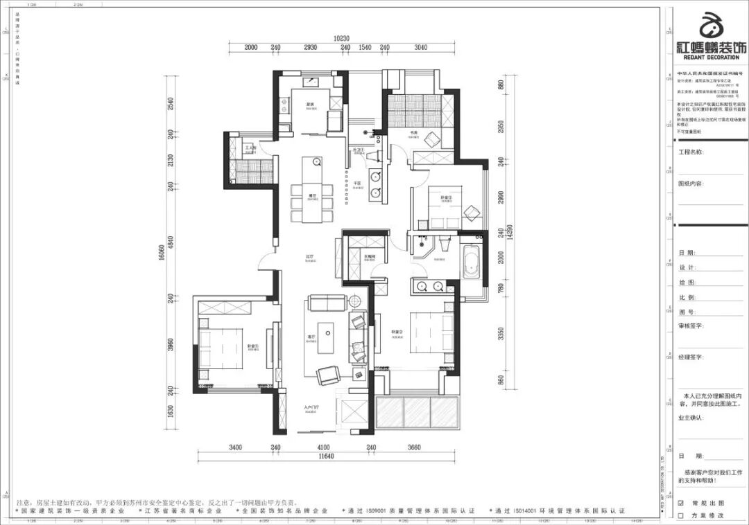
导语:现代时尚,引领潮流,倾尽全力但奢而不华。设计灵感来源于空间中采用的石材、金属、布艺等元素。在原有务实主义建筑风格的框架下,我们用现代美学对话古典元素,运用线条简练,色彩大胆,结合材质凸出效果的设计手法让不同年代的时尚态度在同一空间交流,是我们对本空间的设计思维。平面布置图设计丨Designer:赵玲...
设计丨Designer:赵玲
项目地址丨Project address:颐和湾花园
机构丨Company:红蚂蚁装饰
面积丨Square meters:230㎡
客厅
室内设计艺术结合现代极简主义,用纯粹的色块,理性的线条勾勒出空间的力量美感,展现时代下感性与理性的人文内涵。
餐厅
餐厅的吊顶设计通常采用对称手法,以达到视觉上的舒适感。餐桌所对的位置一般是吊顶的中心,这个位置灯具设计特别重要,它能营造餐厅整个环境的氛围。
书房
书房需要的环境是恬静,因此我们将它选择在了幽静的地下室一角。午后的阳光从缝隙中洒落,让自然的轻声低语来陪伴工作学习。
吧台
在休闲的时光中,倒一杯酒,扫清一天的负面情绪。
卧室
大块纯色墙面显得格外简洁亮丽,以艺术品点缀给卧室增添了新鲜的活力。令人置身卧室就能感受到温馨的静谧感。
设计师:赵玲
主任设计师 从业经验:11年
代表作品:中央景城,凤凰熙岸,金科王府别墅,九龙仓国宾峰,中信森林湖别墅,万科湖西玲珑别墅,龙湖熙上,首开如苑、金兰尚院等。
上一篇: 340㎡现代美式风格别墅案例赏析
请认真填写您的正确信息
2025-11-17 15:39:00
当您买新房装修的时候,需要购买各种各样的家具,而当您购买家具的时候,您就要考虑房子装修家具如何搭配,装修选家具应该注意些什么,下面小编就带您来了解房子装修家具的搭配以及选购注意事项。
2025-11-17 15:03:00
相信近段时间有很多业主新房都在准备开工吧。当房屋装修的前期准备工作做好了以后,就需要进行施工方面的工作了。整个装修工作开始之前,有的业主认为室内的格局不是自己想要的形式,所以就想要拆除室内的墙体,这样既能增加室内空间,又能方便日后生活。对于新房装修,我们都想要按照自己的想法来做,但是很多时候空间设计并不能如愿,这就要进行主体拆改了,但是室内墙体并不是每一堵墙都是可以拆除的,主体拆改时也有注意事项,下面就来看看主体拆改注意事项都有哪些吧!
2025-11-16 14:03:00
风水是中国传统的文化之一,很多人在装修或者设计家居时都会考虑风水问题。下面小编将为你介绍的是家中楼梯风水的五大禁忌,家里楼梯朝向风水讲究,不过,需要提醒的是,风水是一种文化传统,其效果可能因人而异,且并非所有人都认同。
2025-11-15 17:17:00
对于很多第一次买房的人来说,由于没有购房经验,所以很容易被销售忽悠就定了房子。但其实买房的细节特别多,而且还需要注意房子的风水问题,很多人在买房是没有关注房子阳台的朝向,以至于入住后悔了。那么阳台朝向哪个方向好?下面再为大家介绍阳台向东的房子风水,一起来看看吧。
2025-11-13 15:03:00
很多人在装修的时候都会为孩子考虑,有小孩的家庭怎么装修, 相信很多业主都对这个问题很感兴趣。今天就带大家来了解有小孩的家庭怎么装修,家里有小孩适合装修什么风格,家中有小孩,并且打算装修的业主可以来看看。
2025-11-13 14:29:00
近年来,随着全屋定制的流行,越来越多人对板材的要求也在不断提高,在众多板材中,爱格板作为一种新型高端板材,深受许多人们的青睐。那么到底什么是“爱格板”,为何爱格板如此受欢迎,爱格板适合家用吗?感兴趣的话,下面小编就带大家一起来了解下吧~